PART 01
浙江三可熱交換系統有限公司,是一家專業從事換熱器、微通道換熱器和翅片管換熱器的研發、生產和銷售的公司。在紹興擁有一個7.2萬平方米的生產基地,在泰國擁有一個2.5萬平方米的生產基地。公司擁有強大的設計和開發能力,專門設計空調系統和熱管換熱系統的許多領域。涉及公交、電信、工商業制冷、冷凍庫、軌道交通、木材烘干、高壓變電站、航空航天等多個行業,深得客戶信賴。
?

博革工廠布局團隊于2024年10月進駐公司,經過調研分析、功能規劃、詳細布局、輔助設施等步驟,至2025年1月完成整體布局規劃,規劃方案貫穿精益思想,實現流動化生產布局。
PART 02
產品產量分析:



現狀物流分析:
?

功能布局規劃:
?

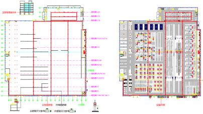
詳細區域布局:
?

周轉器具規劃:

輔助設施規劃:

水電氣規劃:

規劃總結:

推薦新聞
工程機械集團供公司精益管理戰略案例
在項目落地過程中,博革咨詢按照系統診斷、試點推行、樹立標桿、快速復制,IT固化、系統評價、能力內化等七個步驟對集團公司下屬的17個子公司進行推進。 /news/4878.html
某線束工廠裝配車間連續流生產線規劃案例分享
生產線的升級解決了孤島式批量生產的方式,實現了連續流生產模式,在線庫存金額從60萬降為10萬,在制品從50000件降至5000件。車間在建設連續流生產方式時,遵循精益生產思想,通過連續流生產 /news/4876.html
某煤機集團防爆車標準化工位建設促進精益現場建設案例
自精益生產開展以來,原小庫房存余的各型液壓膠管共計2118根,通過統計、甄別、核減,現已消耗938根,核減率達到了44.3%,預計節約成本14萬元。 /news/4875.html